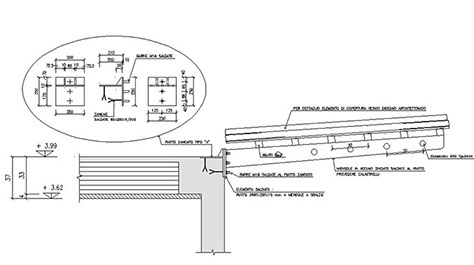
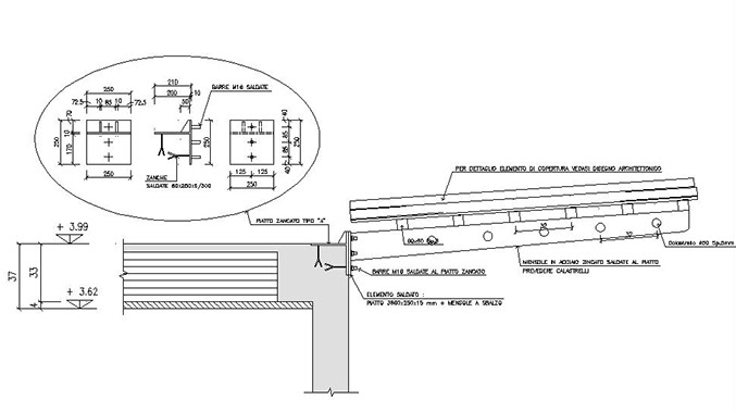
NUOVA SEDE DELLA PROV. DI TREVISO, (EDIFICIO 11)
Progetto strutturale dell’edificio 11
L’edificio ha struttura in cemento armato. la progettazione è stata validata da
RINA. (classe ig)
luogo Venezia - Italia
committente Impresa Ministero dei Beni Culturali
periodo 2002 - 2008 (realizzato)
attività svolte Cprogettazione strutturale
credits Studio arch. Toni Follina (progetto architettonico)
Impresa Setten Genesio s.p.a. (costruttore)
SU RICHIESTA POSSIAMO FORNIRE LA CERTIFICAZIONE DI OGNI LAVORO ESEGUITO